Γράφει η αρχιτέκτων Λίλα Θεοδωρίδου
Η τετραώροφη οικοδομή του Επιμελητηρίου Σερρών κοσμεί την πολυσύχναστη πλατεία Κρονίου. Η οικοδομική άδεια (με αρ. 164) εκδόθηκε στις 17/6/1961 με την υπογραφή του πολιτικού μηχανικού Κωνσταντίνου Ξεν. Σγουρού. Δεν διευκρινίζεται εάν πρόκειται και για μελετητή ή μόνο για επιβλέποντα. Εντοπίσαμε μια πληροφορία στο βιογραφικό του αρχιτέκτονα Ιωάννη Δημητριάδη, ότι το 1956 το 1o βραβείο για τη μελέτη του Εμπορικού και Βιομηχανικού Επιμελητηρίου Σερρών κέρδισε το τεχνικό του γραφείο. Δεν κατορθώθηκε όμως να επαληθευτεί αν η υλοποιηθείσα μελέτη ταυτίζεται με τη βραβευθείσα (του Δημητριάδη).

Το οικόπεδο του Επιμελητηρίου (194 τ.μ) συνδέεται με δύο προπολεμικές διεργασίες. Αφενός με την πράξη τακτοποίησης-αναλογισμού (του 1930) και αφετέρου με την πράξη συνένωσης των με αριθμούς ΑΚ 1323, 1324, 1325 και 1326 Ανταλλάξιμων Κτημάτων της Ε.Τ.Ε (του 1937). Μεταπολεμικά, το οικόπεδο εκποιήθηκε από το Υπουργείο Οικονομικών (Γραφείο Διαχείρισης Ανταλλάξιμης Περιουσίας Σερρών) απευθείας στο Εμπορικό και Βιομηχανικό Επιμελητήριο Σερρών αντί τιμήματος 200 χιλ. δραχμών δυνάμει του υπ’ αριθμ. 926/11-6-1956 πωλητηρίου συμβολαίου Συμβολαιογράφου Σερρών Θ. Βαδικόλια. Με το 2641/3-5-1960 συμβόλαιο έγινε επανάληψη του 926/1956 συμβολαίου αγοραπωλησίας οικοπέδων μεταξύ Ελληνικού Δημοσίου και Εμπορικού και Βιομηχανικού Επιμελητηρίου Σερρών λόγω παράλειψης της γνωμοδότησης της Νομισματικής Επιτροπής (παρακάτω εξιστορείται περιληπτικά η διαμάχη).

Η θεμελίωση
Το κτίριο θεμελιώθηκε από τον τότε Υπουργό Εμπορίου της κυβέρνησης Καραμανλή, τον Λεωνίδα Δερτιλή, στις 4-6-1961. Μετά το πέρας της θρησκευτικής τελετής και της τοποθέτησης του θεμέλιου λίθου ο Πρόεδρος του Επιμελητηρίου Γεώργιος Aθ. Χρηστίδης (1913-1982), ανάδοχος του μονοπωλίου άλατος και πυρίτιδας στις Σέρρες και πρόεδρος του Επιμελητηρίου το διάστημα 1952-1967, είπε απευθυνόμενος προσωπικά στον Υπουργό Εμπορίου ότι ως υφυπουργός Οικονομικών στην κυβέρνηση Παπάγου όχι μόνο ανέχθηκε όλες τις ιδιοτροπίες μας (εννοεί του Επιμελητηρίου), αλλά και τελικά δέχτηκε να τους παραχωρηθεί με συμβολική τιμή (200 χιλ. δρχ. καταβλητέες σε 20 χρόνια) το οικόπεδο αυτό του Δημοσίου. Στον επί της θεμελίωσης λόγο του ο πρόεδρος του Επιμελητηρίου αναφέρθηκε και στην έγκριση 1 εκ. δρχ. τοκοχρεωλυτικού δανείου (ΒΔ 378/4 Ιουνίου 1961), καθώς και στην αναμενόμενη κρατική επιχορήγηση (τα Επιμελητήρια είχαν από τότε οντότητα ΝΠΔΔ).

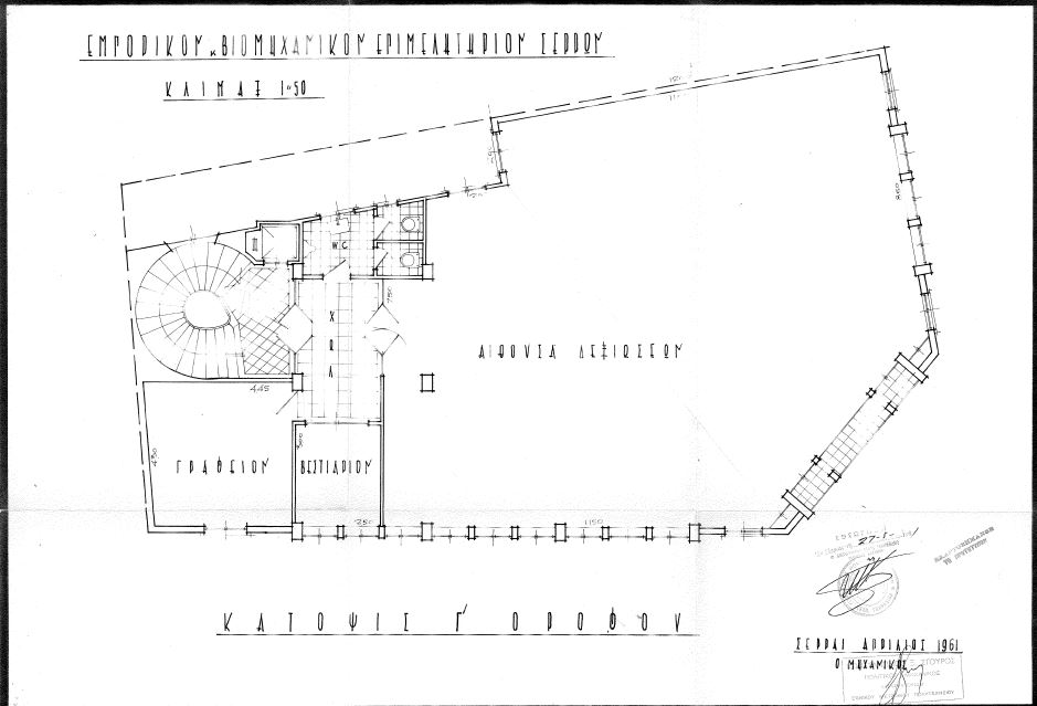
Το κτίριο είχε συγκεκριμένο κτιριολογικό πρόγραμμα από την αρχή. Στον β’ όροφο προβλεπόταν να δημιουργηθεί αίθουσα που θα φιλοξενούσε το πολύτιμο υλικό της Δημόσιας Βιβλιοθήκης, που μέχρι τότε φιλοξενούνταν «περιφρονημένο» στα υπόγεια του Γυμνασίου Αρρένων. Και στον γ’ όροφο μια πολυτελής αίθουσα χωρητικότητας 450 ατόμων για συνελεύσεις, συναυλίες, διαλέξεις και δεξιώσεις ώστε το κτίριο να καταστεί λόγω κατασκευής και θέσης το επίκεντρο κάθε πολιτιστικής εκδήλωσης και να καλύψει έτσι ένα μεγάλο κενό στην πόλη.
Τι είχε προηγηθεί
Είχε προηγηθεί μια δίχρονη και οδυνηρή διαμάχη που δικαιολογούσε τον θριαμβευτικό τόνο των εγκαινίων. Η διαμάχη κατέληξε σε δίκη επί απιστία και επτά μήνες φυλάκιση στον Γ. Χρηστίδη (εφημ. Μακεδονία 24/2/960 σελ. 5 και 25.2.1960 σελ. 3). Κατηγορήθηκε ότι εκποίησε το 1956 σε ασύμφορη τιμή το τότε οικόπεδο του Επιμελητηρίου, ότι παράτυπα αγόρασε άλλο (το σημερινό) για ανέγερση μεγάρου, ότι διέθεσε χρήματα για προαγορά οικοδομικών υλικών χωρίς να υπάρχουν σχέδια και μελέτες, και γενικά ότι ζημίωσε το Επιμελητήριο. Καταδικάστηκε μετά από προδικαστική περίοδο δύο ετών (και δύο 24ώρα ενώπιον του δικαστηρίου) για το αδίκημα της τυπικής παράβασης του νόμου περί νομισματικής Επιτροπής (αθωώθηκε στο Εφετείο). Η παράβαση συνίστατο στο ότι χωρίς την προηγούμενη έγκριση της Νομισματικής Επιτροπής (όπως προβλεπόταν) προέβη στην αγορά από το Δημόσιο του οικοπέδου. Οι υπόλοιποι κατηγορούμενοι, μέλη του Επιμελητηρίου, απηλλάγησαν.

Η αρχιτεκτονική διαμόρφωση
Η πρόσοψη χωρίζεται σε τρία τμήματα: στη βάση (καταστήματα του ισογείου), στον κύριο όγκο (τρεις όροφοι) και στη «στέψη» (μαρκίζα δώματος με σκοτία). Ακόμη κι αν δεν γνωρίζαμε τη χρονολογία ανέγερσης, και μόνο από την αρχιτεκτονική μορφολογία θα τοποθετούσαμε το κτίριο στις αρχές του ’60, όταν ο ελληνικός μεταπολεμικός μοντερνισμός γνωρίζει άνθηση. Πρόκειται για το λεγόμενο «διεθνές» στιλ (στα καθ’ ημάς) με κύρια χαρακτηριστικά τον ορθογωνικό κάναβο, την εναλλαγή διαφανών και αδιαφανών ενοτήτων, την έλλειψη διακοσμητικών παραστάδων και κοσμημάτων.
Η κάτοψη ακολουθεί τη ρυμοτομική γραμμή κατά το λεγόμενο «συνεχές» σύστημα δόμησης. Οι τρεις επίπεδες όψεις αποκτούν αναγλυφότητα μέσω κατακόρυφων αρχιτεκτονικών προεξοχών. Δύο μεγάλα πλαίσια ορίζουν τις γυάλινες επιφάνειες επί της οδού Περιστέρη Κωστοπούλου. Η λοξή πλευρά (απότμηση) του κτιρίου τονίζεται με μικρή υποχώρηση (εσοχή) από τη ρυμοτομική γραμμή και τη δημιουργία αντίστοιχου εξώστη με μεταλλικό κιγκλίδωμα και ξύλινα κουφώματα. Περιβάλλεται και αυτή από πλαίσιο. Τη ρυθμική διάταξη των πλαισίων με τα ανακλινόμενα παράθυρα και τις γυάλινες ποδιές (διαφάνεια) διακόπτουν τέσσερις συμπαγείς επιφάνειες βοηθώντας στην ανάδειξη των πρώτων και ακολουθώντας το ίδιο κάναβο. Η παρουσία κανάβου (σε μεγάλη και μικρή κλίμακα) είναι εμφανής ακόμη και στην πολυτελή ορθομαρμάρωση με μάρμαρο Αγίας Μαρίνας – ορθομαρμάρωση που συντελεί στη διατήρηση των όψεων σε καλή κατάσταση μέχρι σήμερα.

Ένας προσωπικός άθλος του Γ. Χρηστίδη
Το επόμενο διάστημα στην τοπική εφημεριδογραφία εμφανίζονται διάφορα δημοσιεύματα που επαινούν το κτίριο (π.χ. «ένα από τα πιο ακριβά, τα πιο σπάνια κοσμήματα των Σερρών») χαρακτηρίζοντας το και ως προσωπικό άθλο του Χρηστίδη. Στη δε Σερραϊκή Προσωπογραφία (1971), έκδοση της πολιτιστικής εταιρείας Σερραϊκής Πολιτιστικής Εταιρείας (Σ.Π.Ε), αναγράφεται ότι το κτίριο κόστισε 2.930 χιλ. δρχ., τα περισσότερα από τα οποία προήλθαν από προσωπικές πρωτοβουλίες/γνωριμίες του Χρηστίδη. Για παράδειγμα, ο Κ. Καραμανλής μεσολάβησε ώστε να δοθούν 500 χιλ. από κρατικές επενδύσεις συν δάνειο εικοσαετίας από το Ταμείο Παρακαταθηκών & Δανείων με επιτόκιο 6%. Ο Στρατής Ανδρεάδης, ιδιοκτήτης της Ιονικής και Λαϊκής Τράπεζας, 500 χιλ ως προκαταβολή για την ενοικίαση καταστήματος του ισογείου, όπου εγκαταστάθηκε άμεσα το υποκατάστημα της Τράπεζας του. Ο Κων. Κυριακόπουλος, διευθυντής της ίδιας Τράπεζας, 60 χιλ δρχ. ως δώρο της Τράπεζας. Πολλές οργανώσεις της πόλης, όπως ο Δικηγορικός Σύλλογος, ο Σύλλογος Συμβολαιογράφων, αλλά και άτομα προερχόμενα από τον επιστημονικό κόσμο και μέλη του Επιμελητηρίου προσέφεραν δωρεές για την επίπλωση. Αξιόλογη, κατά την παραπάνω έκδοση, υπήρξε και η συμβολή των μηχανικών του έργου Κων. Σγουρού και Αλ. Δεσποτίδη, καθώς και των εργοληπτών αδελφών Ψωμά και Βασ. Πανούση.

Τα χρόνια που ακολούθησαν το κτίριο απέκτησε μεγάλη αίγλη και επισκεψιμότητα. Χιλιάδες Σερραίων προσέρχονταν στις διαλέξεις και λοιπές εκδηλώσεις του 3ου ορόφου και στη δημοφιλή δημόσια βιβλιοθήκη του 2ου. Αν και η βιβλιοθήκη μετεγκαταστάθηκε αργότερα σε δικό της (ιδιόκτητο) κτίριο, πολλοί ακόμη αναπολούν νοσταλγικά την εποχή που στεγαζόταν στο Επιμελητήριο. Μεταξύ αυτών και εγώ.
Επίλογος
Στην επικεφαλίδα χαρακτηρίσαμε το κτίριο ως «πολυτελές» λόγω κυρίως της προσεγμένης ορθομαρμάρωσης των όψεών του. Το ίδιο πολυτελές όμως υπήρξε και το εσωτερικό του. Δρύινο παρκέ, περίτεχνες γύψινες διακοσμήσεις και βαρύτιμοι πολυέλαιοι Τσεχοσλοβακίας δημιουργούσαν μια ξεχωριστή ατμόσφαιρα.

Ο δε προερχόμενος από την Ιταλία μπρούτζινος φτερωτός Ερμής (διαχρονικό επιμελητηριακό σύμβολο) στην ειδικά διαμορφωμένη καμπύλη εσοχή με τα διαφανή υαλότουβλα, που κοσμεί το ισόγειο, αποτελεί μια ευχάριστη έκπληξη. Μια πινελιά κομψότητας, που υποδέχεται ευχάριστα τον επισκέπτη, αναβαθμίζει το περιβάλλον και συμβάλλει στον χαρακτηρισμό μας περί «πολυτέλειας». Την κομψή και διακριτική «πολυτέλεια» των ’60.

Όμως, το πιο σημαντικό, κατά τη γνώμη μου, σ’ αυτό το κτίριο είναι ότι δεν υπήρξε απλώς και μόνο ένα ακόμη απρόσωπο κτίριο γραφείων, αλλά ένα πολυχρηστικό κέλυφος επαγγελματικής και πολιτιστικής ζωής, όπου ο Κερδώος και ο Λόγιος Ερμής συνυπήρξαν αρμονικά.
Ευχαριστίες
Ευχαριστώ τον Βασίλη Γιαννογλούδη για τις ειδήσεις για τη δίκη κ.λπ. από την εφημ. Σερραϊκόν Βήμα, την Ανίτα Νάσσου και τον Δημήτρη Ακριτίδη για τις κτιριοδομικές πληροφορίες.
Βιβλιογραφία
Συλλογικός Τόμος (επιμ. Γεώργιος Καφταντζής), Σερραϊκή Προσωπογραφία, έκδοση Σερραϊκής Πολιτιστικής Εταιρείας, 1971.
(Δημοσιεύτηκε στο έντυπο Ser-Free, τ.72, Δεκέμβριος 2025)
















